企業新聞
行業新聞
特色小鎮
景觀設計
建筑規劃
建筑設計
勘察測量
市政設計
了解我們
企業資質
服務范圍
團隊風采
招賢納士
在線留言
發布時間:2022-04-06
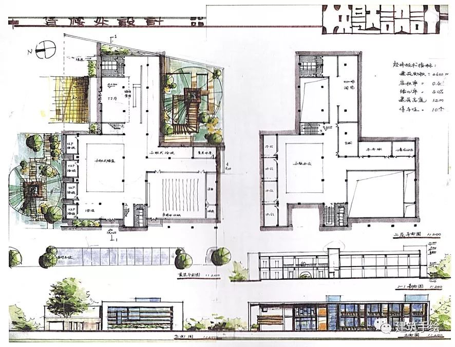
建筑快題設計是對建筑方案設計的高度概括和提煉,本資料僅僅是建筑快題設計的一種示例,通過大量研讀提高規律性認識,運用到自己的設計實踐中去。
(注:本文素材來源于網絡,版權歸原作者所有,僅供大家交流學習!如若圖文資源侵犯您權益,請及時與我們聯系,我們將第一時間做出處理。)
蘇公網安備 32050802010190號
Copyright © 2024 蘇州市城市建筑設計院有限責任公司 蘇ICP備13014434號 技術支持:匯成傳媒
地址:江蘇省蘇州市相城區黃橋街道黃橋工業一區永方路6號 電話:0512-68133170 企業郵箱:szcsjzsjy@163.com 網址:http://m.hbcwatercraft.com/